Welcome To Visit Stvev Lighting Equipment Co.,Ltd,

SUOYILIGHT CHINESEChina SUOYILIGHT EnglishEnglish
Staeg Art Sale Hotline

Sale Hotline:
86-20-36266956

ArushaBar Entertainment Place ArushaTheater Auditorium ArushaPerformance Event ArushaMultifunctional Hall ArushaCultural Tourism Lighting

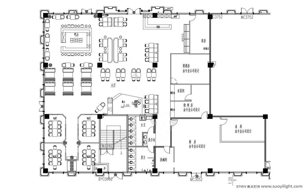
Arusha复古型音乐清吧效果图及平面方案

Source: Author: Pubdate:2021-04-06 10581 Pageview

复古型清吧充满了一种古典优雅的气息。木制的深褐色的桌子造型简单大方,充满了现代设计独特的美感,同时木制的设计为整个清吧增加了一种独有的古朴的味道,充满了浓浓的怀旧的感觉,显得整个房间的设计别与风味。木制的桌子上摆放着一束浅色的花,显得非常清新雅致,搭配上深灰色的窗帘,显得非常具有质朴的美感。

Arusha复古型音乐清吧效果图及平面方案
  • Arusha复古型音乐清吧效果图及平面方案
  • Arusha复古型音乐清吧效果图及平面方案

复古型清吧充满了一种古典优雅的气息。木制的深褐色的桌子造型简单大方,充满了现代设计独特的美感,同时木制的设计为整个清吧增加了一种独有的古朴的味道,充满了浓浓的怀旧的感觉,显得整个房间的设计别与风味。木制的桌子上摆放着一束浅色的花,显得非常清新雅致,搭配上深灰色的窗帘,显得非常具有质朴的美感。

每个想要开清吧的朋友都希望自己装修好的清吧能别具特色,首先想清楚自己想要理想的效果,再进行设计,有人说,自己不知道到底该怎么做才好。做清吧装修时除了要注重空间设计的合理化外,还应注重选择适当的色彩和灯光,只有这些布局合理的情况下,才能保证清吧最后装修的效果能让店主满意,同时也能让来这里消费的人喜欢。另外在选择风格时要注意选择适合自己主题的风格,选用的材料要保证能让清吧的整体效果实现多样化,而色彩则主要选用暖色调,除这些外,在吊顶上要结合具体的区域功能选择适合的吊顶风格和材料。

选什么风格也是清吧主题的直接体现,因此,在清吧装修时,先确定主题是很重要的一点,要想体现风格,就必须通过合理的墙面装饰来完成。其次,合理的材料选择可以使清吧的整体感觉不同,但这并不意味着直接把材料堆在一起就可以了,而只是使清吧的功能多样化而已。另外也要看其色彩如何,在色彩方面清吧要求营造出那种比较暖和的感觉,它所选择的桌椅材料一般都不能使用玻璃,因为玻璃材料会使整个清吧感觉比较冷清,所以,建议最好用实木桌椅,然后在上面放置一些玻璃装饰物,使整个气氛变得比较暖和。三是看灯具、吊顶是否给力。灯饰及吊顶建议选用暖色,这样可以保证让人感觉舒适,另外,在吊顶时要注意,应选择不同地方不同的吊顶,这样可以更好地突出装修效果。

Last: ArushaCC Bar

Next: None

WeChat